2012

МАРКАЗИ САВДОИ КУРКАТ

Ҷамъиятӣ + Корхонаҳо

Маълумот

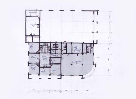
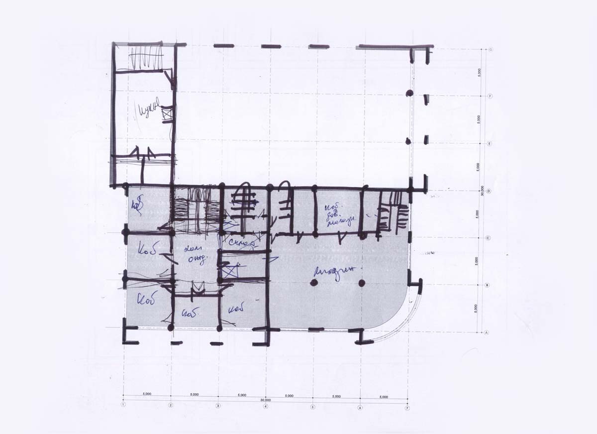
Масоҳати умумии ҳудуд: ~7 400,00 м2;
Масоҳати умумии зерисохтмон: ~550,00 м2;
Масоҳати умумии бино: ~1 250,00 м2;
Ҳаҷми сохтмон: ~3 700,00 м3;
Ошёнаҳо: 1 ва 3 ошёна.

Гурӯҳи муаллифон

Сармеъмор - Аноров Ғ. С.
Меъморон - Содиков Н. Ш., Азизов Ф. Ф.,
3d-визуализатсия - Шокалонов Ҷ. Ш., Содиков Н. Ш., Назаров О. А.
Муҳандис-конструктор - Шерматов С. А.

Солнома

Лоиҳакашӣ: соли 2012
Сохтмон:
Истифодабарӣ:

Нишонӣ

Фармоишгар: Шахси воқеъи;
Истифодабаранда: Шахси воқеъи;
Суроға: шаҳри Душанбе, кӯчаи А.Сино, 42;
Тарроҳӣ
Ангора